木調の機能門柱とシンボルツリーの組み合わせが温かみのある新築ベーシック オープン外構
プラン内容 No.3380
※データは見積当時のものです
- 見積参考価格
- 344 万円
- 工事面積
- 166m 2
- 工事種別
- 新築外構
- 地形
- 変形
- 方位
- 南
- 車の台数
- 3台以上
- 登録日
- 2025-09-06
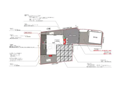
イメージパース・図面






コメント
玄関横に宅配ボックス付き機能門柱 YKKAP 木製調ルシアスポストユニットPJ01型を採用し、シンボルツリーと組み合わせることで、利便性を向上しつつ、外観に温かみを添えます。 敷地境界には目隠しフェンス LIXIL AB YS3型を設置し、周囲からの視線をブロックしてプライバシーをしっかり確保します。 駐車スペースとアプローチには土間コンクリート仕上げとし、耐久性とメンテナンス性に優れた清潔感のあるスペースを作りました。






